Cusano Milanino - via Concordia

3
Locali
2
Bagni
148
m2

487.000

Appartamento Cusano Milanino via Concordia

Descrizione
Immobile

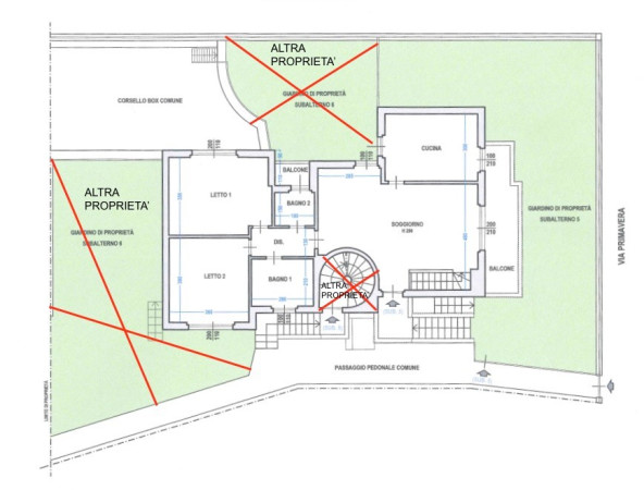
CUSANO MILANINO Via Concordia 11 Conosciuta come la prima città giardino d’Italia, In zona residenziale e tranquilla di sole abitazioni, a pochi passi dal centro cittadino, principali servizi, negozi di prima necessità, parchi e scuole, proponiamo in vendita in un condominio molto curato di sole sei unità abitative, uno splendido e ampio appartamento di tre locali oltre alla taverna posto al piano rialzato/terreno. All’ingresso ci accoglie una luminosa zona giorno con un suggestivo living / conversazione e angolo studio, la cucina abitabile ben rifinita e attrezzata su misura con accesso tramite porta finestra al balcone dedicato con affaccio sul giardino privato con impianto irrigazione programmabile e luci notturne che creano una suggestiva atmosfera. Dal disimpegno con ribassamento si accede alla zona notte dove si trovano il primo servizio finestrato con box doccia e balcone che funge da ripostiglio e zona per l’asciugatrice, la prima camera matrimoniale, il secondo e principale servizio, anch’esso finestrato con vasca ed infine la camera padronale. Dal soggiorno, nascosta dalla parete tv si trova la scala che conduce a una bellissima taverna con, finestre a mezza altezza e una zona conversazione, ideale soprattutto per gustare ottimi pranzi e cene in compagnia sia in estate dove l'ambiente risulta più fresco che in inverno, grazie anche alla presenza del camino che rende l’atmosfera perfetta per le occasioni. Questa confortevole taverna di mq. 30, si presta perfettamente anche come stanza per gli ospiti, offrendo privacy e comfort. Esternamente sia dalla taverna che dalla porta principale si accede al giardino privato angolare, ideale per trascorrere momenti di relax all’aperto. L' immobile si presenta ristrutturato in ogni sua parte nel 2011 ma risulta attualissimo grazie alle scelte delle finiture e degli arredi, in parte su misura, presenti all’interno. I sanitari di design, con elementi sospesi e materiali eterni, sono presenti impianto di climatizzazione canalizzato con funzione caldo / freddo, antifurto interno ed esterno, serramenti in legno doppio vetro di nota fattura con taglio termico, parquet a lisca di pesce, videocitofono, e tapparelle elettriche in ogni stanza. Anche per il riscaldamento autonomo e regolabile tramite termostato sono stati scelti termoarredi degni di nota. Tutto questo permette di gestire i consumi e le spese in maniera efficiente. Grazie ad una favorevole esposizione a est -sud e ovest la luce solare fa da padrona, irradiando gli ambienti naturalmente durante le ore diurne. Completano la proposta un box singolo con serranda motorizzata. Le spese condominiali sono di circa € 2.500 / anno Il prezzo di acquisto per questa affascinante dimora ammonta ad € 487.000.00 A parte vi è la possibilità di acquisto di un secondo box singolo, anch’esso con serranda motorizzata. È caldamente consigliata la visione.

Contattaci

Area

Comune
Cusano Milanino
Zona
via Concordia
Superficie m2
148
Tipologia
Appartamento
Anno costruzione
1985
Appartamento Cusano Milanino via Concordia
Appartamento Cusano Milanino via Concordia
Appartamento Cusano Milanino via Concordia

Caratteristiche

Camere da letto
2
Bagni
2
Cucina
Abitabile
Box
Singolo
Giardino
Presente
Stato manutenzione
Ottimo
Riscaldamento
Autonomo
Piani edificio
1
Legge classe energetica
DL 192/2005
Altro
Cancello elettrico, Video citofono, Impianto allarme, Fibra ottica, Porta blindata

Potrebbero interessarti

Visualizza tutti