Cinisello Balsamo - via Monte Nero

3
Locali
2
Bagni
150
m2

425.000

Appartamento Cinisello Balsamo via Monte Nero

Descrizione
Immobile

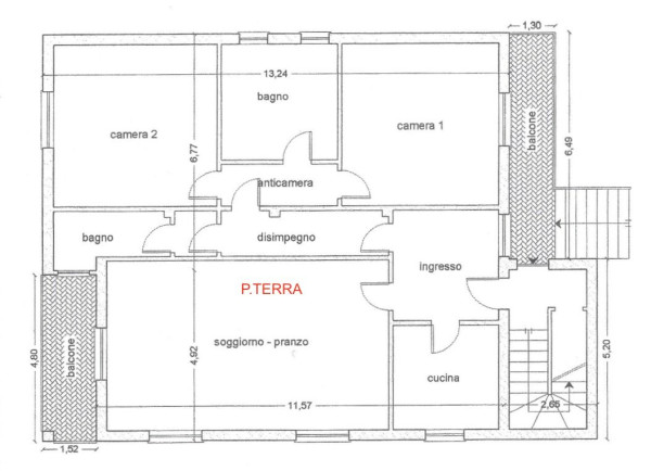
STUDIO 13, PER INFORMAZIONI CONTATTARE CRISTINA 392 8539351 CINISELLO BALSAMO (MI) – VIA MONTE NERO In zona residenziale di sole abitazioni, comoda con il centro cittadino, principali servizi, parchi e scuole, proponiamo in vendita una porzione di villa bifamiliare, composta da un grande appartamento con accesso indipendente di tre locali di 150mq posto al piano rialzato. All’ingresso ci accolgono un’ampia zona giorno con living / conversazione con accesso al balcone e la cucina abitabile. Dal disimpegno con ribassamento si passa alla zona notte dove si trovano il primo servizio finestrato, la prima camera matrimoniale, una sala da bagno con vasca jacuzzi e box doccia ed infine la seconda camera matrimoniale, anch’essa con il suo balcone dedicato. L’appartamento si presenta in normale stato di conservazione e può essere abitato da subito, ma ma grazie agli ampi spazi e alle dimensioni dei locali si presta a qualsiasi tipo di personalizzazione e a una ristrutturazione, così da sfruttare al meglio le potenzialità che questa soluzione ha da offrire. A completare questa proposta un grande punto di forza, il box di ben 150mq al piano seminterrato, ideale per ogni tipo di esigenza in termini di spazio. La gestione delle utenze è autonoma, il che permette di controllare i consumi in maniera efficiente. Non ci sono spese condominiali. Il prezzo di acquisto ammonta ad € 425.000,00 In alternativa a quest’ultima è disponibile all’acquisto l’appartamento delle medesime dimensioni e condizioni posto al piano primo e compreso di un ampio giardino privato e dei rustici da poter sviluppare sia come ulteriori abitazioni che per ulteriori esigenze abitative. Il prezzo per questa ulteriore proprietà è di € 425.000,00 Come proposta finale si può acquistare l'intera proprietà composta dai due appartamenti, box e con tutti gli accessori e pertinenze al prezzo di € 850.000,00 STUDIO 13, PER INFORMAZIONI CONTATTARE CRISTINA 392 8539351

Contattaci

Area

Comune
Cinisello Balsamo
Zona
via Monte Nero
Superficie m2
150
Tipologia
Appartamento
Anno costruzione
1960
Appartamento Cinisello Balsamo via Monte Nero
Appartamento Cinisello Balsamo via Monte Nero
Appartamento Cinisello Balsamo via Monte Nero

Caratteristiche

Camere da letto
2
Bagni
2
Cucina
Abitabile
Stato manutenzione
Da ristrutturare
Riscaldamento
Autonomo
Piani edificio
1
Stato
Libero
Legge classe energetica
DL 192/2005

Potrebbero interessarti

Visualizza tutti